Event Rooms

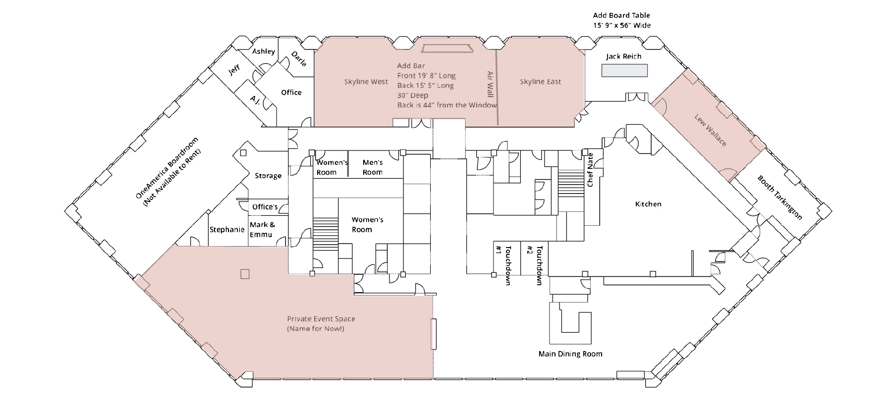
    • Our newly renovated private event room, View, is a great space for large cocktail receptions, weddings, rehearsal dinners, and corporate meetings and entertaining for up to 160 guests. Hence the name, the view is amazing – Extended floor-to-ceiling windows overlook Monument Circle and Lucas Oil Stadium.  It is a very popular room for holiday parties and cocktail receptions of up to 250 guests.

      Layout

      Occupancy by Configuration

      Classroom

      100 guests

      Theatre

      250 guests

      Conference

      100 guests

      Hollow Square

      100 guests

      U-Shape

      125 guests

      Reception

      250 guests

      Rounds

      150 guests

    • The Firefly Lounge has a more casual atmosphere and is most frequently reserved for casual entertaining and cocktail receptions. The lounge setup makes this space a great addition to your large Corporate Dinner or Wedding Reception as a pre-dinner cocktail and bar area. Limited rental dates available.

      Layout

      Occupancy by Configuration

      Classroom

      -

      Theatre

      -

      Conference

      -

      Hollow Square

      -

      U-Shape

      -

      Reception

      100

      Rounds

      -

       

    • The University Ballroom can seat up to 120 guests. When divided, it can accommodate up to 80 guests on one side and up to 40 guests on the other.  This room overlooks the IUPUI campus, the White River, and the Indianapolis Canal.

      Layout

      Occupancy by Configuration

      Classroom

      50 guests

      Theatre

      200 guests

      Conference

      100 guests

      Hollow Square

      65 guests

      U-Shape

      60 guests

      Reception

      150 guests

      Rounds

      100 guests

       

    • The Booth Tarkington Room is a favored room with a corner view of Monument Circle and can seat up to 20 people.

      Layout

      Occupancy by Configuration

      Classroom

      -

      Theatre

      40 guests

      Conference

      20 guests

      Hollow Square

      -

      U-Shape

      -

      Reception

      40 guests

      Rounds

      (2) 72"

       

    • The Jack Reich Board Room is a state-of-the-art power board room and can seat up to 14 guests.  It also includes a flat-screen 70" LCD monitor, cable television, one-touch iPad control for audio/video conferencing and 2 large picture windows overlooking the canal and the White River.

      Layout

      Occupancy by Configuration

      Classroom

      -

      Theatre

      -

      Conference

      12 guests

      Hollow Square

      -

      U-Shape

      -

      Reception

      -

      Rounds

      -

       

    • The Walker Room can seat up to 30 guests with flexible setup styles to accommodate any occasion.

      Layout

      Occupancy by Configuration

      Classroom

      -

      Theatre

      50 guests

      Conference

      30 guests

      Hollow Square

      -

      U-Shape

      -

      Reception

      50 guests

      Rounds

      (3) 72"